결혼을 하고 신혼가구를 고르면서 가장 먼저 신경을 쓰는 것이 침대가 아닐까 싶습니다. 저도 저번에 이사를 하게 되면서 지코님과 침대 위치에 대해서 이야기를 한 적이 있었습니다. 무심코 지날수도 있지만 은근 신경이 쓰여서 찾아보게 되는 안방 침대위치 풍수지리. 오늘은 어떻게 하는 것이 좋을지에 대해서 알아보도록 하겠습니다.

안방은 우리가 가장 편하게 있어야 하는 공간이고, 쉴 수 있는 공간이기 때문에 집 안에서 가장 편하게 있어야 합니다. 일로 지쳤을 때 육아로 지쳤을 때 내 몸이 가장 편하게 있을 수 있어야 하는데요. 어떻게 꾸며놓으면 될까요?



건강한 삶은 풍수와 밀접한 관련을 맺고 있습니다. 특히 한국의 전통사상인 풍수지리학에 의하면 침대와 가구의 배치에 따라서 삶의 길흉화복을 바꿀 수 있다고 합니다.
침대 풍수지리 인테리어의 기본은 지친 하루의 피로를 풀고, 숙면을 취할 수 있도록 해주는 침대의 위치가 중요합니다. 하지만 최적의 침대방형은 사람에 따라서 달라질 수 있습니다.
사람에게는 누구나 12가지 살이 있는데, 그 중에 말 안장에 올라타 편안하게 앉아있다 라는 의미를 가진 반안살은 길한 살에 해당이 됩니다.
누군가에게서 덕을 보거나 뜻밖의 행운을 마주치게 되는데, 그 때문에 각기 다른 반안살의 방향을 참고해서 안방 침대위치 풍수지리를 생각해 위치를 잡는다면 금전운이 찾아오게 만들수도 있고, 행운을 불러올 수도 있습니다.


띠별 안방 침대위치 풍수지리방향
-뱀띠, 닭띠, 소띠: 서북방향: 10시방향
-호랑이띠, 말띠, 개띠: 남서방향: 7시방향
-돼지띠, 토끼띠, 양띠: 동남방향: 4시방향
-원숭이띠, 쥐띠, 용띠: 북동 방향: 1시방향
안방 침대위치 풍수지리는 네가지 반안살의 방향을 알려주는데, 이 공간은 늘 깨끗하게 하고, 밝게 두어야합니다. 만약에 이 공간이 어두운 경우 코너등을 설치는 해서 그 부분만 환하게 밝히면 훨씬 좋습니다.


안방의 위치
안방의 풍수인테리어에 대해 또 알려드리자면 안방은 사랑, 행복, 재물과 관련이 깊은 공간이고 부부과 함께 있는 공간입니다.
침실은 현관에서 가장 먼곳에 위치를 하는 것이 좋은데, 그 이유는 현관에서 들어오는 소음이 잘 들리지 않는 먼곳이면 좋습니다.
안방이 현관문과 마주 하는 곳에 위치한다면 외부로 부터 들어오는 나쁜 기운을 정면을 맞이하기 때문에 외부의 나쁜 에너지와 액운이 여과없이 들어오게 됩니다.
그렇게 되면 건강에 나쁜 영향을 끼치고, 집안의 재물과 금전이 빠져나가게 됩니다. 그 집안의 길흉화복을 결정을 짓는 가장 중요한 공간이기 때문에 특히 외부로 부터 니쁜 액운이 들어오지 않도록 하는 것이 좋습니다.
만약 현관문과 마주하는 공간이라면 중문을 만들어 두면 외부로 부터 들어오는 액운과 나쁜 에너지를 차단할 수 있습니다. 그리고 현관문과 안방에 중문을 만들어 주는 것이 불가능 하다면 몇개의 관엽식물 화분을 배치를 하는 것이 좋습니다.
잎이 풍선한 관엽식물은 외부에서 들어오는 나쁜 기운을 중화시키는 작용을 하기 때문에 액운을 맞을 수 있는 수단이 될 수 있습니다.
중간에 설치하는 관엽식물은 3~5개정도로 사람키보다 크지 않은 동그란 것이 좋습니다. 또한 화장실과 안방이 가까이 있는 것이 좋지 않는데, 요즘은 함께 있는 구조가 많기 때문에 이런 경우는 잠을 자기 전에 꼭 화장실 변기와 문을 닫아두는 것이 좋습니다.
안방 침대방향
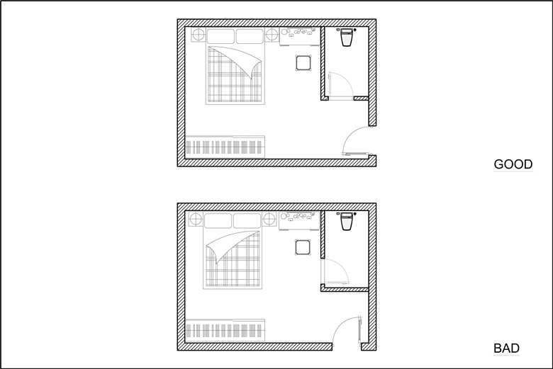
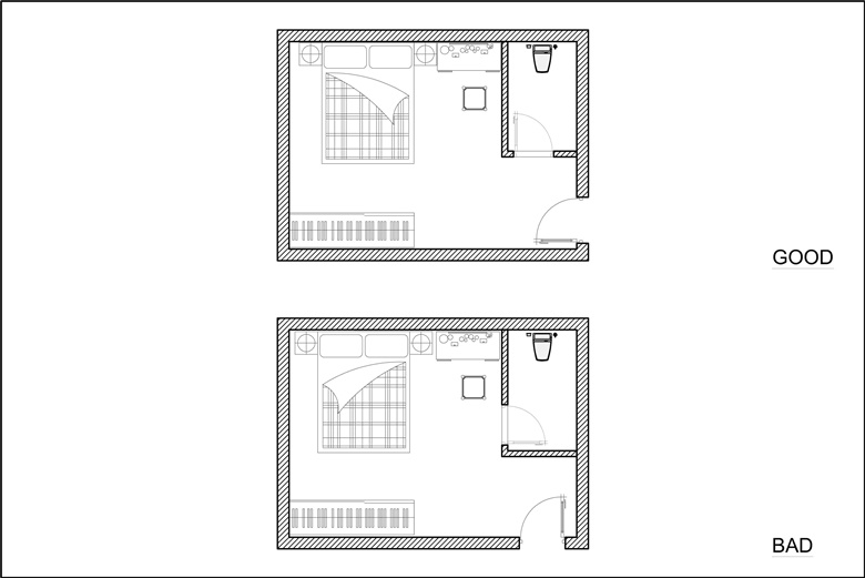
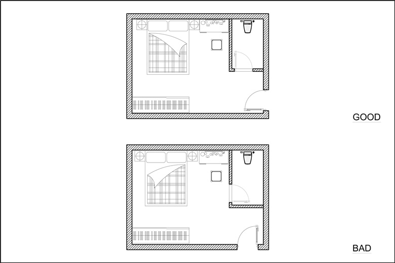
안방 침대위치 풍수지리 두번째 알려드릴 것은 침대의 해드가 문쪽으로 향하지 않는 것이 좋습니다. 문의 방향과 정반대의 방향으로 위치를시켜야하며 안방문을 열었을 때 그 대각선 상에 있는 두벽면 쪽에 침대 해드가 향하도록 위치하는 것이 가장 좋습니다.
안반문에서 대각선 상에 있는 두 벽면 쪽이 사랑, 제물, 행운을 쌓이게 해주는 럭키존이기 때문에 그 쪽에 해드부분을 둔다면 부부간의 애정, 건강, 재물운을 좋게 만들어 줄 수 있습니다.
침대 맞은 편에는 커다란 장롱이나 경대를 두지 않는 것이 좋은데, 그 이유는 누웠을 때 눈에 보이는 장소에 있으면 심리적으로 위압감을 졸 수 있고, 그로인해서 편안한 숙면을 취하는데, 방해가 될 수 있기 때문입니다.
안방 창문은 외부의 빛을 차단을 해줄 수 있는 은은한 빛깔이나 그레이, 블루색의 커튼을 설치하는 것이 좋습니다.
침대에 걸어두면 좋은 그림
걸어두면 좋은 그림은 잉어그림, 꽃그림, 식물그림이 좋습니다.
밝은색의 꽃이나 식물은 재물운을 상승시키고 행운을 불러들이게 되는데, 모란꽃은 부부간의 금슬을 좋게하고, 금전운이나 건강운을 상승시킬 수 있는 행운을 가져오는 그림이라 안방에 걸어두면 좋습니다.
침대에 놓지 말아야할 것
침대에 놓지 말아야할 것은 고장난 시계와 드라이플라워입니다. 고장난 것은 정지된 기운을 의미하며 드라이플라워 역시 죽어있는 꽃이기 때문에 음의 기운을 상징을 합니다. 그리고, 날카로운 물건을 두는 것도 좋지 않으니 선인장처럼 뾰족한 가시가 돋친 살의 기운릉 가진것은 두지 않는 것이 좋습니다.
'생활정보' 카테고리의 다른 글
| 거실 풍수 인테리어 가족관계운 상승하는 팁 (0) | 2022.08.11 |
|---|---|
| 주방 식탁 풍수인테리어 팁 (0) | 2022.08.11 |
| 손에 순간접착제 지우는법 걱정말고 이렇게! (0) | 2022.04.23 |
| 여권갱신 준비물 서류 온라인신청방법 정리 (0) | 2022.04.22 |
| 하이패스 사용내역 조회 미납통행료 사용내역 조회 납부 (0) | 2022.04.12 |
댓글